PUNTO LOMAS

TIPOLOGÍA Arquitectura Comercial
ÁREA 1,391 m²
AÑO 2025
UBICACIÓN Las Lomas, Veracruz
EQUIPO Allan Legaspi, Neus Company, Gabriel Alarcón, Chrystian Martín, Héctor Franco
STATUS En construcción

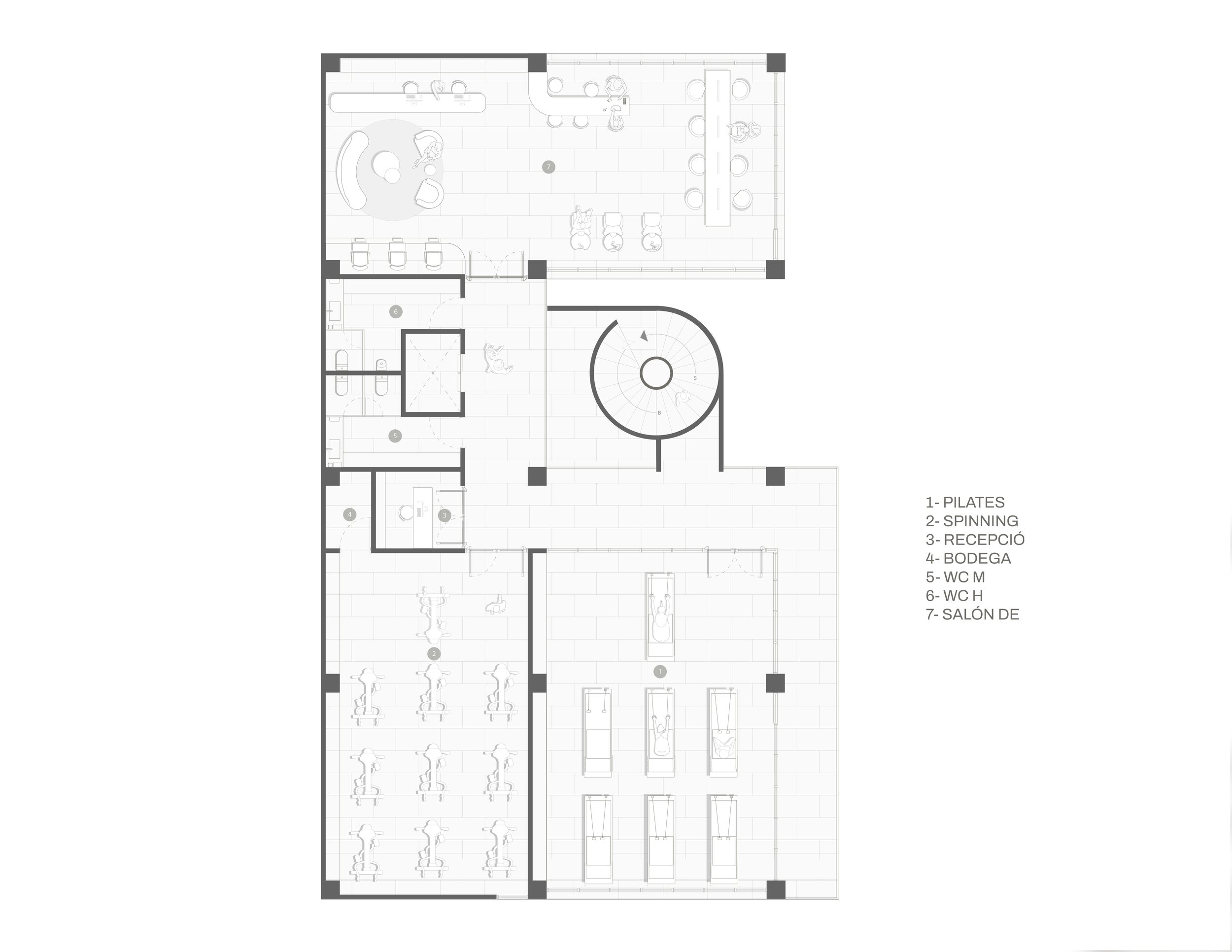
PUNTO LOMAS es un centro comercial boutique de tres niveles concebido para un público altamente dinámico: mujeres profesionales y madres que valoran el bienestar, el tiempo y la calidad, dentro de un estilo de vida contemporáneo.

El programa arquitectónico integra un gimnasio boutique, estudios de pilates y spinning, clínica estética, peluquería, cafetería, restaurante y una ludoteca con personal especializado. Esta combinación genera una experiencia integral que articula salud, ocio y cuidado personal en un entorno compacto y funcional.

Insertado en un nuevo desarrollo habitacional en Veracruz, el proyecto se estructura bajo criterios de eficiencia espacial, flexibilidad operativa y optimización de flujos. La modulación de la estructura y la lógica de circulación vertical y horizontal permiten adaptar los locales a diferentes modelos comerciales, asegurando su vigencia y alta ocupación a largo plazo.

La circulación vertical, articulada por una escalera central de carácter escultórico, actúa como punto focal y elemento de identidad, reforzando la continuidad visual entre los tres niveles y dinamizando el flujo de visitantes.

La fachada principal, resuelta con grandes paños acristalados, busca una transparencia que diluye los límites entre interior y exterior, generando una relación directa con el peatón y potenciando la visibilidad de las marcas. La orientación del edificio y el uso controlado de elementos de sombreado optimizan el comportamiento térmico, reduciendo la incidencia solar directa y mejorando el confort interior.

Desde su concepción, Punto Lomas se proyecta como un ejercicio de arquitectura eficiente y emocional, donde la escala humana, la luz natural y la claridad estructural se integran para construir una experiencia comercial más consciente, cercana y duradera.

OTROS PROYECTOS:

Anterior
Anterior

CLUB NÁUTICO PUERTO CORALA